Meni
  • Enote
  • ZASNOVA
  • DOKONČANJE OBJEKTOV
  • Galerija
    • Video
  • Novice
  • Okolica
  • Kontakt
  • Kontakt
  • English
Objekt S14

Samostojna hiša - S14

Tip hiše Samostojna hiša
Velikost gradbene parcele 579,00
Kvadratura (K+P+N) skupaj 0,00
Cena* 1.100.000
Objekt Klet S14
Objekt Nadstropje S14
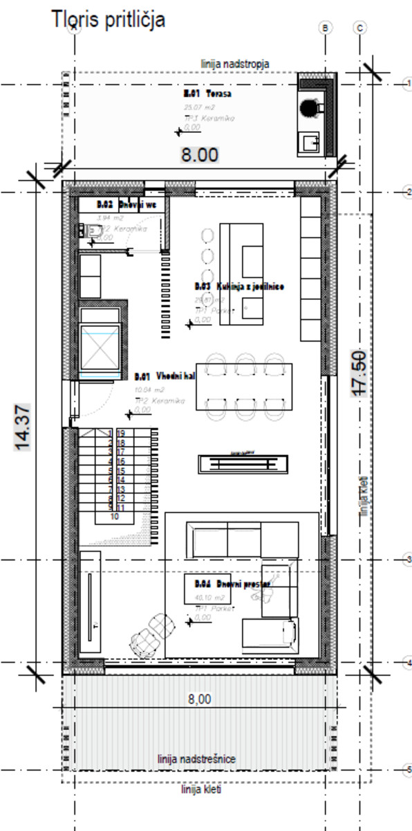
Objekt Pritličje S14
Objekt Klet S14
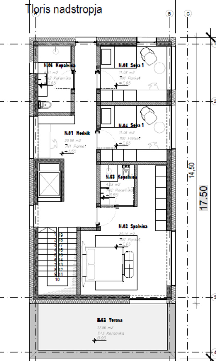
Objekt Nadstropje S14
Objekt Pritličje S14

Opis Samostojna hiša

Hiša se razteza čez tri etaže, ki omogočajo sodobno in funkcionalno ureditev prostorov. Neto kvadratura je podana glede na predlagani tloris, vendar lahko kupec z manj predelnimi stenami pridobi še več uporabne površine.

Notranjost je zamišljena tako, da vsak kupec lahko uredi prostore po svojem okusu, priporočena razporeditev pa vključuje:

  • Pritličje: prostoren, odprt bivalni del s kuhinjo, jedilnico in dnevno sobo, ki se nadaljuje na zelenico in veliko teraso – idealen prostor za sproščanje in druženje na prostem. V pritličju so še hodnik, priročen dnevni WC, garderobna soba in garaža.

  • 1. nadstropje: predvideni so spalni prostori, kopalnice, gardederoba, utility ter shramba.

  • Klet: večnamenski prostori, shramba in strojnica. Skupna površina kleti znaša več kot 100 m².

Parcela in zunanja ureditev
Parcela meri 579 m² in je obdana z zelenjem, kar zagotavlja prijetno zasebnost. Zunanja ureditev pa omogoča ustvarjanje prijetnega kotička za poletna druženja. Strehe so ravne nepohodne, hidro in toplotno izolirane ter krite s prodcem.

Stopnja izvedbe
Hiša se prodaja v 3. podaljšani gradbeni fazi (PGF). Po želji pa investitor ponuja tudi podporo pri dokončanju enote - celostno vodenje in usklajevanje del preko partnerskega podjetja, vse do uporabnega dovoljenja.

Tehnične rešitve
Predvideno je ogrevanje s toplotno črpalko, hiša bo opremljena z rekuperacijo in klimatskimi napravami za večje bivalno udobje.

Lokacija
V neposredni bližini so vrtec, šola, trgovina in športno-rekreativne površine. Okolica ponuja veliko zelenih površin, ki vabijo k sprehodom, kolesarjenju in aktivnemu preživljanju prostega časa.

Dodatne informacije
Za lažjo predstavo so na voljo renderji in tlorisi posameznih enot. Vsi podatki v oglasu so informativne narave in se lahko spremenijo brez predhodnega obvestila. Kupec je pred nakupom dolžan preveriti vse bistvene informacije.

Predstavljene površine so izračunane v skladu s standardom SIST ISO 9836.

Vabimo vas, da nas kontaktirate za ogled in podrobnejši posvet na info@podsmarnogoro.si.

__________

* Investitor si pridržuje pravico do sprememb tehničnih rešitev, načina izvedbe posameznih del ter zamenjave barv in/ali materialov, če te spremembe ne vplivajo na kakovost nepremičnine, dogovorjeno pogodbeno ceno, oziroma roke za izpolnitev pogodbenih obveznosti.

** Vse vizualizacije, 3D-renderji in grafične predstavitve objektov ter notranje opreme so simbolične narave in so namenjene prikazu okvirne podobe projekta. Dejanska izvedba se lahko razlikuje od prikazanih slik oziroma vizualizacij.

Galerija

Lokacija v naselju Lokacija v naselju Lokacija v naselju Lokacija v naselju Lokacija v naselju Lokacija v naselju Lokacija v naselju
Kontaktirajte nas

Kontakt

  • Naslov: Tbilisijska ulica 59, Ljubljana, Slovenija
  • E-pošta: info@podsmarnogoro.si
  • Telefon: 031 633 040
  • Pravno obvestilo
  • Piškotki
Kabi d.o.o Oblikovanje in izdelava spletne strani Kabi d.o.o.
Kontaktirajte nas