Meni
  • Enote
  • ZASNOVA
  • DOKONČANJE OBJEKTOV
  • Galerija
    • Video
  • Novice
  • Okolica
  • Kontakt
  • Kontakt
  • English
Objekt S17

Vrstna hiša - S17

Tip hiše Vrstna hiša
Velikost gradbene parcele 215,00
Kvadratura (K+P+N) skupaj 224,00
Cena* 650.000
Objekt Klet S17
Objekt Nadstropje S17
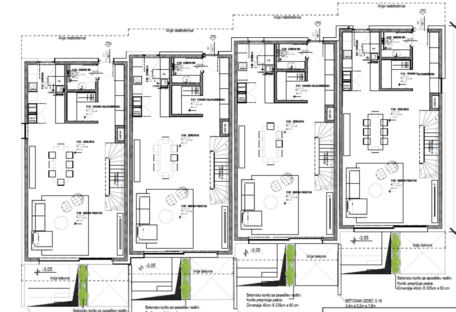
Objekt Pritličje S17
Objekt Klet S17
Objekt Nadstropje S17
Objekt Pritličje S17

Opis Vrstna hiša

Hiša se razteza čez tri etaže in ponuja skupno 224 m² bivalnih površin, zasnovanih tako, da omogočajo sodobno in funkcionalno ureditev prostorov. Neto kvadratura je podana glede na predlagani tloris, vendar lahko kupec z manj predelnimi stenami pridobi še več uporabne površine.

Notranjost je zamišljena tako, da vsak kupec lahko uredi prostore po svojem okusu, priporočena razporeditev pa vključuje:

  • Pritličje: prostoren, odprt bivalni del s kuhinjo, jedilnico in dnevno sobo, ki se nadaljuje na zelenico in skoraj 30 m² veliko teraso – idealen prostor za sproščanje in druženje na prostem. V pritličju sta še hodnik in priročen dnevni WC.

  • 1. nadstropje: glavno spalnico z lastno kopalnico, dve do tri otroške sobe ter dodatna kopalnica.

  • Klet: velik večnamenski prostor, shramba, utility in strojnica. Zaradi atrijske zasnove je del kleti osvetljen z naravno svetlobo. Skupna površina kleti znaša približno 77 m².

Parcela in zunanja ureditev
Parcela meri 215 m² in je obdana z zelenjem, kar zagotavlja prijetno zasebnost. Na voljo sta dve lastni parkirni mesti, zunanja ureditev pa omogoča ustvarjanje prijetnega kotička za poletna druženja.

Stopnja izvedbe
Hiša se prodaja v 3. podaljšani gradbeni fazi (PGF). Po želji pa investitor ponuja tudi podporo pri dokončanju enote - celostno vodenje in usklajevanje del preko partnerskega podjetja, vse do uporabnega dovoljenja.

Tehnične rešitve
Predvideno je ogrevanje s toplotno črpalko, hiša bo opremljena z rekuperacijo in klimatskimi napravami za večje bivalno udobje.

Lokacija
V neposredni bližini so vrtec, šola, trgovina in športno-rekreativne površine. Okolica ponuja veliko zelenih površin, ki vabijo k sprehodom, kolesarjenju in aktivnemu preživljanju prostega časa.

Dodatne informacije
Za lažjo predstavo so na voljo renderji in tlorisi posameznih enot. Vsi podatki v oglasu so informativne narave in se lahko spremenijo brez predhodnega obvestila. Kupec je pred nakupom dolžan preveriti vse bistvene informacije.

Predstavljene površine so izračunane v skladu s standardom SIST ISO 9836.

Vabimo vas, da nas kontaktirate za ogled in podrobnejši posvet na info@podsmarnogoro.si.

__________

* Investitor si pridržuje pravico do sprememb tehničnih rešitev, načina izvedbe posameznih del ter zamenjave barv in/ali materialov, če te spremembe ne vplivajo na kakovost nepremičnine, dogovorjeno pogodbeno ceno, oziroma roke za izpolnitev pogodbenih obveznosti.

** Vse vizualizacije, 3D-renderji in grafične predstavitve objektov ter notranje opreme so simbolične narave in so namenjene prikazu okvirne podobe projekta. Dejanska izvedba se lahko razlikuje od prikazanih slik oziroma vizualizacij.

Galerija

Lokacija v naselju Lokacija v naselju Lokacija v naselju
Kontaktirajte nas

Kontakt

  • Naslov: Tbilisijska ulica 59, Ljubljana, Slovenija
  • E-pošta: info@podsmarnogoro.si
  • Telefon: 031 633 040
  • Pravno obvestilo
  • Piškotki
Kabi d.o.o Oblikovanje in izdelava spletne strani Kabi d.o.o.
Kontaktirajte nas